aapt_program_final_sm13 - page 142

142
Portland
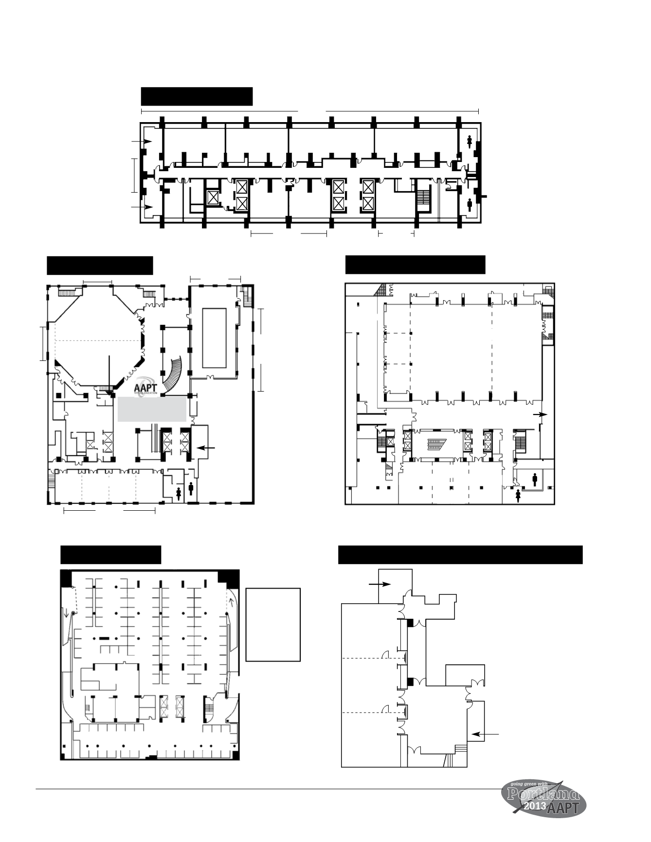
Function Space Capacities
THIRD FLOOR
HILTON PORTLAND EXECUTIVE TOWER
BALLROOM LEVEL
SALON
BALLROOM
III
II
I
SALON
PREFUNCTION
SPACE
EXECUTIVE
TOWER
BOARDROOM
FORUM
COUNCIL
DIRECTORS
STUDIO
BOARDROOM
EAST
BOARDROOM
WEST
CABINET
EXECUTIVE
SENATE
GRANDBALLROOM
FOYER
BanquetKitchen
I
II
PARLOR
A
B
C
GALLERIA
III
II
I
NORTH
SOUTH
PAVILION
EAST
WEST
BROADWAY
IV III
II
I
PLAZA
SUITE
PLAZA LEVEL
EXHIBIT HALL
BUSINESS
CENTER
Access to
ExhibitHall
AthleticClub
Pool
PLAZA FOYER
Banquet
Kitchen
Windows
Windows
Windows
Windows
Windows
Windows
Windows
Windows
Windows
Hilton Portland Map
Plaza Foyer
(REGISTRATION)
(below Ballroom level)
PIRA
Resource
Room
(below Plaza level)
(building across street)
TYC Resource
Room
(Skyline rooms
on 23rd floor)
I...,132,133,134,135,136,137,138,139,140,141 143,144,145,146,147,148,149,150
Powered by FlippingBook